Projekte        Wohnen       Wohnanlage Stadtwerder
Wohnbauten Stadtwerder, Bremen. Hilmes Lamprecht Architekten.BDA.
Wohnbauten Stadtwerder, Bremen. Hilmes Lamprecht Architekten.BDA.
Wohnbauten Stadtwerder, Bremen. Hilmes Lamprecht Architekten.BDA.
Wohnbauten Stadtwerder, Bremen. Hilmes Lamprecht Architekten.BDA.
Wohnbauten Stadtwerder, Bremen. Hilmes Lamprecht Architekten.BDA.
Wohnanlage Stadtwerder Bild 6
Wohnanlage Stadtwerder Bild 7

Wohnanlage Stadtwerder – 1. Platz

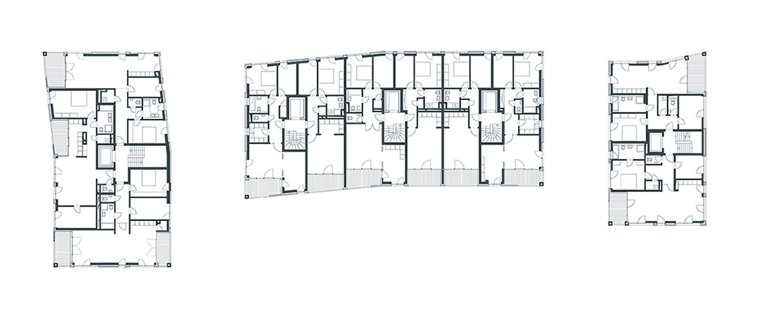
In dem neuen Quartier auf dem Stadtwerder wurden drei Wohngebäude mit vier Vollgeschossen um einen grünen Innenhof gegliedert. Die städtebaulich klar gezirkelten Kanten wurden zugunsten von leicht geöffneten Fassadenfluchten aufgeweitet. Die Erschließungen der Wohnhäuser, bestehend aus Zwei- bis Drei- Spännern, erfolgt über den Innenhof ohne diesem seine Privatheit zu nehmen. Die Grundrisstypologie sieht verschiedene, gut geschnittene und flexible Wohnstrukturen für jedes Alter, bis hin zu Wohneinheiten mit eigenem Gartenanteil vor. Die eingeschobenen Loggien an den Gebäudeecken geben den Wohnungen genügend Privatheit. Ein aus Lochmauerwerk gesetzter Paravent lässt die gesamte Mauerwerksfassade gelöst und gegliedert wirken. Durch das helles Mauerwerk und die schrägen Gebäudekanten entwickelt das Gebäude seine eigene Charakteristik.

Wettbewerb 2009 – 1. Platz

Auftrag WWB Weser-Wohnbau Holding GmBH & CO. KG
Raum
Ort Stadtwerder, Bremen
Zeit 2009 – 2013
Bild

Holger Kattert, Sven Otte